Phase 1 - Community Center and Facilities Garage
Projected Cost - $800,000
Phase 1 is COMPLETE! The building is open and is being used regularly by the Hope Chest and various other ministries. This has been an enormous blessing to our church and our community already and we are excited to see how the Lord will continue to use this space!
Phase 2 - Children's Wing
Projected Cost - $400,000
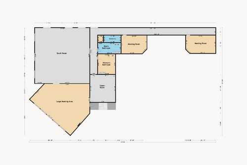
Work has begun on Phase 2! The contractors have arrived and begun the demolition process. We are thrilled to see movement and can't wait to see the finished product. As a reminder, the reason we have initiated this plan is that we desire to have a place where all of our children have a single, dedicated, and safe space. From birth through 6th grade, our children will have a uniquely designed space just for them. This will include check-in, classrooms, large group gathering space, space for our new moms who can watch services while caring for their infants, and a sensory room for our children with special needs. We are currently in the design phase. We hope to present our drawings soon and have township approvals so that we can begin construction in early 2024.


Phase 3 - Large Group Gathering and Youth Center
Projected Cost - Unknown
We need additional large group gathering spaces. This second-floor addition will provide substantial space for adult gatherings, bible studies, and small groups. This phase will also include a dedicated large space for our 7th - 12th grade youth.
Phase 4 - Offices
Projected Cost - Unknown
This phase will renovate some classrooms, converting them into office space for our staff.
We look forward to moving our staff offices into our main building.
We look forward to moving our staff offices into our main building.


